Riverside South

TERRA TOWNHOMES

The Opal

1,414 sq. ft.

DOWNLOAD PDF

FRONT

 

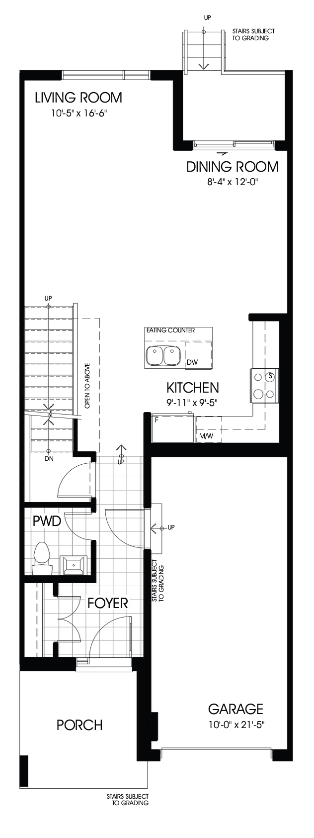
GROUND FLOOR Opal Ground Floor
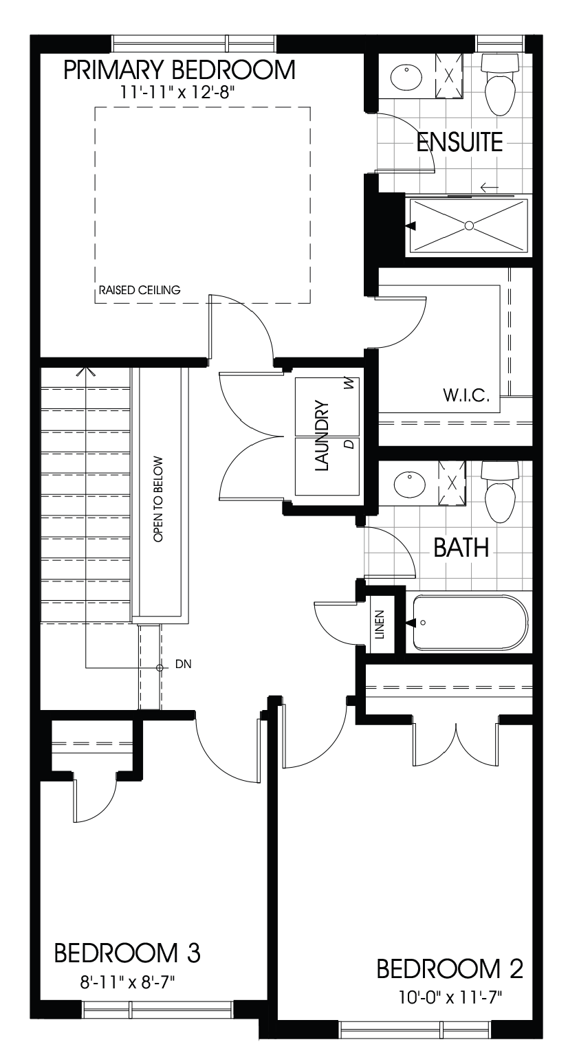
SECOND FLOOR Opal Second Floor
BASEMENT Opal Basement

Areas and dimensions are approximate. Layout may be reverse of the unit purchased. Prices, figures, illustrations, sizes, features and finishes are subject to change without notice. E. & O.E.



SIGN UP TO RECEIVE COMMUNITY UPDATES AND EXCLUSIVE ACCESS TO NEW RELEASES

* Legal first and last name required to pre-register for releases

* Required Fields